projects

Lulworth

Coming soon

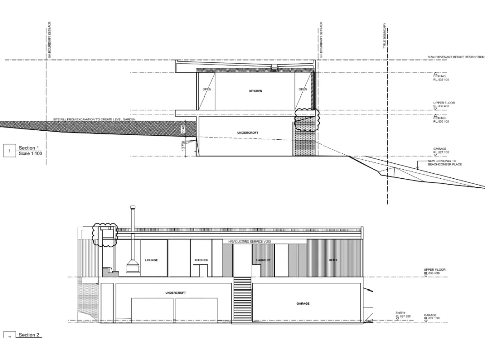
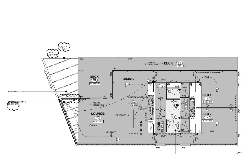
This sustainable and energy efficient home will feature Passivhaus systems and materials and be one of our first builds of it's kind in the north of Tasmania.

The home’s mid-century design, spacious lounge, flowing kitchen and dining space have panoramic views of the surrounds, and ambience from a centred fireplace. We can't wait to have some fun with the interior finishes of this project and are aiming to incorporate bold colours along with interesting textures.

Screen Shot 2024 05 14 at 7 31 00 am
Screen Shot 2024 05 14 at 7 31 57 am

Interested in a new build?

Get in touch